Spacious, ready-to-use warehouse in Póvoa Santo Adrião, the space that can grow your business

449 000€

  • 2
  • Usable: 665m2
  • Floor: 665m2
  • C.E.: Exempt
  • Year: 1988
  • Solar Orientation: East, South
  • Ref: 65573-COLI60794

Location

Lisboa, Odivelas, Póvoa de Santo Adrião e Olival Basto, Centro (Póvoa de Santo Adrião)

Description

This warehouse is located in the industrial area of Póvoa Santo Adrião.
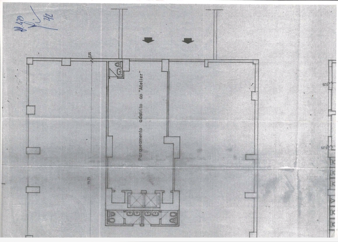
It has 2 toilets and 1 kitchen.
Piped water and electricity.
The warehouse also has windows at some points.
This warehouse is 665 m2 large.
Independent entrance and easy accessibility.
Easy access to the main roads.
Located next to large stores and services.
Consolidated area with excellent commercial dynamics.
Don't miss this opportunity and book your visit now.

Attributes

  • Kitchen / Kitchenette
  • City View
  • Storage area
  • Outdoor parking
  • Piped Water
  • Good Solar Exposure
  • Manual exterior gate

Divisions

Blueprints

Floor name: House Floor 0

Division Area Note
WC
Parking
Under Stair Storage
Kitchen
WC