Santarém, Salvaterra de Magos, Muge, Centro
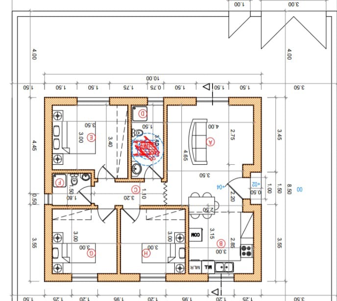
Moradia em inicio de construção, T3, cozinha equipada, em lote de 450m2, com 3 quartos e Kitchenette. Cozinha equipada. Ar Condicionado na sala e pré instalação nos quartos. XPS no piso do sótão(open space) para total conforto e isolamento, paredes exteriores revestidas a capoto, caixilharia em PVC com vidro duplo e estores térmicos. Portão automático,Tomada para viatura eléctrica.
Área descoberta 365m2, sendo 255 de quintal.
Tem prazo previsto para a conclusão da obra de 6/7 meses.
Fica junto à herdade do Cadaval, onde existe uma extensa e conceituada vinha, bem como actividade equestre.
A 50 min de Lisboa.
Em fase de colocação da laje superior, seguindo-se a cobertura e a alvenaria.